
-

- 営業時間:10:00~19:00
- 定休日:日曜日、祭日、隔週土曜日

-
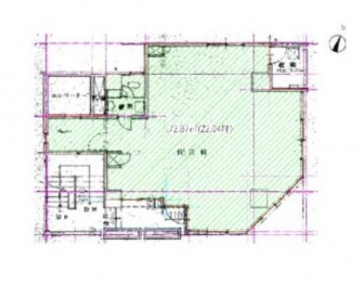
築年月 1980年11月 建物構造 鉄骨鉄筋コンクリート造 / 8階建 駐車場 - 駐車場賃料 - 保証金 - 償却金 - 更新料 新賃料の1ヶ月分 主要採光面 - 家財保険 - 入居時期 - 現況 空室 設備・条件 エレベーター , トイレ , 駅徒歩5分以内 , 2階以上 備考 サービス業可・ショールーム可
町会費月額500円/鍵交換代入居時22000円
契約期間 2年 取引態様 仲介 自社管理番号 - 最終更新日 2025年11月13日

-
- この賃貸事務所と条件の近い賃貸事務所を探す

-

- 営業時間:10:00~19:00
- 定休日:日曜日、祭日、隔週土曜日


























