「池袋」駅事務所【物件No.01696】
音ノ葉イマス池袋ビル
- 賃料:142.3万円(共益費:355,830円)
- 敷金:10ヶ月 / 礼金:-
- 所在地:東京都豊島区池袋1-13-18
- 交通1:JR山手線 「池袋」駅 徒歩9分
- 交通2:東京メトロ丸ノ内線 「池袋」駅 徒歩9分
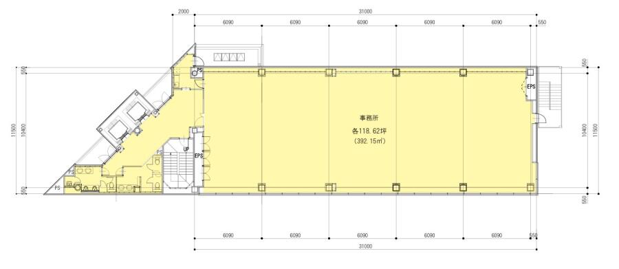
| 共益費 | 規模 / 所在階 | 面積 | 竣工 |
|---|---|---|---|
| 355,830円 | 8階建 / 7階 | 392.15m² | 1992年6月 |
川越街道・首都高5号線沿いの美築オフィスビル!!
光ファイバー・フリーアクセスフロア対応

-

- 営業時間:10:00~19:00
- 定休日:日曜日、祭日、隔週土曜日

-
築年月 1992年6月 建物構造 鉄骨造 / 8階建 駐車場 - 駐車場賃料 - 保証金 - 償却金 2ヶ月 主要採光面 - 家財保険 - 入居時期 - 現況 居住中 設備・条件 エレベーター , トイレ , OAフロア , 機械警備 , 2階以上 設備・条件 事務所仕様 備考 - 契約期間 2年 取引態様 仲介 自社管理番号 - 最終更新日 2025年11月13日

-
- この賃貸事務所と条件の近い賃貸事務所を探す

-

- 営業時間:10:00~19:00
- 定休日:日曜日、祭日、隔週土曜日


























