「大塚」駅マンション【物件No.01619】
レジディアタワー上池袋(タワー棟)
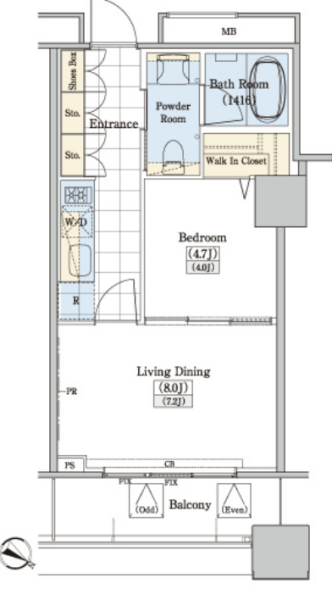
| 共益費 | 規模 / 所在階 | 間取 / 面積 | 築年月 |
|---|---|---|---|
| 20,000円 | 22階建 / 4階 | 1LDK / 37.56m² | 2009年5月 |
大塚駅徒歩10分!ハイグレード賃貸マンション!
礼金0!(個人契約限定) 2025年11月内装リノベーション済み! ペット・楽器相談可! |

-

- 営業時間:10:00~19:00
- 定休日:日曜日、祭日、隔週土曜日

-
築年月 2009年5月 建物構造 鉄筋コンクリート造 / 22階建 駐車場 - 駐車場賃料 - 保証金 - 償却金 - 更新料 新賃料の1ヶ月分 主要採光面 北東 家財保険 要加入 入居時期 - 現況 空室 設備・条件 エアコン付 , フローリング , オートロック , バルコニー , エレベーター , 室内洗濯機置場 , 2階以上 , バス・トイレ別 , 追炊風呂 , 浴室換気乾燥機 , ウォシュレット , システムキッチン , 宅配ボックス , 楽器可・相談 , ペット可・相談 , 築20年以内 備考 ※礼金0
※インターネット使⽤料 1,650円 税込 ⽉額
※鍵交換費用 22,000円
※1年未満解約時、賃料1ヶ⽉分の違約⾦有り
※保証会社利⽤必須
【IRS③】IUCレジデンシャルサポート 加入要 初回契約時:40%、更新時:10,000円、月額:1,000円
契約期間 3年 定期借家 取引態様 仲介 自社管理番号 - 最終更新日 2026年03月12日

-
- この賃貸マンションと条件の近い賃貸マンションを探す

-

- 営業時間:10:00~19:00
- 定休日:日曜日、祭日、隔週土曜日

























